Pencil Drawing Of Meadfoot Bay Torquay Devon England Landscape Drawings Drawings Torquay

Pencil Drawing Of Meadfoot Bay Torquay Devon England Landscape Drawings Drawings Torquay

Kate Boucher View Of The Sea Torquay Moleskine Art Book Art Art Journal

Kate Boucher View Of The Sea Torquay Moleskine Art Book Art Art Journal

Superb Abstract Piece From Scrappaperartist Finished Torbay Torquay Art Illustration Drawing Draw Picture Artist Sketch Sketc Art Cool Art Art Day

Superb Abstract Piece From Scrappaperartist Finished Torbay Torquay Art Illustration Drawing Draw Picture Artist Sketch Sketc Art Cool Art Art Day

Sketch By De La Beche Showing Folded Carboniferous Limestone Near Torquay South Devon From Transactions Of The G Geology Vintage Illustration Jurassic Coast

Sketch By De La Beche Showing Folded Carboniferous Limestone Near Torquay South Devon From Transactions Of The G Geology Vintage Illustration Jurassic Coast

Pin By Katy Rugel Maritano On Tattoos In 2021 Holiday Illustrations Dream Holiday Flower Drawing

Pin By Katy Rugel Maritano On Tattoos In 2021 Holiday Illustrations Dream Holiday Flower Drawing

Banksy Becomes Blanksy Famous Graffiti Artist S Painting At Torquay Hotel Is Boarded Over To Stop Vandals Striking Banksy Artwork Street Art Banksy Street Art

Banksy Becomes Blanksy Famous Graffiti Artist S Painting At Torquay Hotel Is Boarded Over To Stop Vandals Striking Banksy Artwork Street Art Banksy Street Art

Banksy Becomes Blanksy Famous Graffiti Artist S Painting At Torquay Hotel Is Boarded Over To Stop Vandals Striking Banksy Artwork Street Art Banksy Street Art

Watercolour By Queen Victoria Torquay Queen Victoria Prince Albert Queen Victoria Sketches

Watercolour By Queen Victoria Torquay Queen Victoria Prince Albert Queen Victoria Sketches

Jewellery Shops Kildare Village Until Jewellery Online Platform After Kushal Jewellery Near Me Jewellery Shops Torquay Out Drawings Art Inspiration Art Design

Jewellery Shops Kildare Village Until Jewellery Online Platform After Kushal Jewellery Near Me Jewellery Shops Torquay Out Drawings Art Inspiration Art Design

Torquay Boys Grammar School Architecture Drawing Grammar School Torquay

Torquay Boys Grammar School Architecture Drawing Grammar School Torquay

Torquay Palm Cabbage Tree Print Etsy Ink Pen Drawings Tree Print Ink Drawing

Torquay Palm Cabbage Tree Print Etsy Ink Pen Drawings Tree Print Ink Drawing

Kate Wyatt Artist Kate Wyatt Art Squirrel Art Squirrel Illustration Animal Paintings

Kate Wyatt Artist Kate Wyatt Art Squirrel Art Squirrel Illustration Animal Paintings

Art Gallery Original Paintings Limited Edition Prints Framing Kate Wyatt Art Fairytale Art Animal Art

Art Gallery Original Paintings Limited Edition Prints Framing Kate Wyatt Art Fairytale Art Animal Art

Art Gallery Original Paintings Limited Edition Prints Framing Kate Wyatt Animal Drawings Art Art Gallery

Art Gallery Original Paintings Limited Edition Prints Framing Kate Wyatt Animal Drawings Art Art Gallery

Gray S Lodge Torquay England 1883 John D Sedding Original Plan Architecture Blueprints Torquay Architecture Details

Gray S Lodge Torquay England 1883 John D Sedding Original Plan Architecture Blueprints Torquay Architecture Details

New The 10 Best Art With Pictures Torquay Streetart Art Cool Art Cool Drawings

New The 10 Best Art With Pictures Torquay Streetart Art Cool Art Cool Drawings

Gallery Of Torquay Concrete House Auhaus Architecture 17 Concrete House Concrete Houses Architecture Elevation

Gallery Of Torquay Concrete House Auhaus Architecture 17 Concrete House Concrete Houses Architecture Elevation

Jarryn Dower On Instagram Working On Another Popular Landmark Along Victoria S Rugged Coastline This One Of The 12 Surfboard Art Surf Art Vintage World Maps

Jarryn Dower On Instagram Working On Another Popular Landmark Along Victoria S Rugged Coastline This One Of The 12 Surfboard Art Surf Art Vintage World Maps

Original Paintings Prints Bronzes Ceramics Glass Framing Laura Wall Illyustracii

Original Paintings Prints Bronzes Ceramics Glass Framing Laura Wall Illyustracii

Original Paintings Limited Edition Prints Framing Kate Wyatt Mona Rabbit Art Bunny Art Animal Art

Original Paintings Limited Edition Prints Framing Kate Wyatt Mona Rabbit Art Bunny Art Animal Art

Pin On Architecture

Pin On Architecture

Flint Stone Tools Stone Age Tools Arrowheads Artifacts Stone

Flint Stone Tools Stone Age Tools Arrowheads Artifacts Stone

Art Gallery Original Paintings Limited Edition Prints Framing Kate Wyatt Animal Drawings Animal Art Art

Art Gallery Original Paintings Limited Edition Prints Framing Kate Wyatt Animal Drawings Animal Art Art

Pin On Adult Coloring

Pin On Adult Coloring

Pin On Art

Pin On Art

John Lennon Drawings Up For Auction Beatles Art John Lennon Drawings

John Lennon Drawings Up For Auction Beatles Art John Lennon Drawings

Torquay House Wolveridge Architects Archello Torquay House Architectural House Plans Torquay

Torquay House Wolveridge Architects Archello Torquay House Architectural House Plans Torquay

أوتنتهي يآ غربتي Human Painting Art Romantic Art

أوتنتهي يآ غربتي Human Painting Art Romantic Art

Brother And Sister By Sensiblerose Sisters Drawing Sisters Art Baby Cartoon Drawing

Brother And Sister By Sensiblerose Sisters Drawing Sisters Art Baby Cartoon Drawing

Instagram Photo By Kevin Williams Apr 1 2016 At 1 59am Utc Hipster Drawing Sketch Book Man Sketch

Instagram Photo By Kevin Williams Apr 1 2016 At 1 59am Utc Hipster Drawing Sketch Book Man Sketch

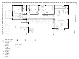
Gallery Of Torquay Concrete House Auhaus Architecture 17 In 2020 Concrete House House Floor Plans Concrete Houses

Gallery Of Torquay Concrete House Auhaus Architecture 17 In 2020 Concrete House House Floor Plans Concrete Houses

Painting Torquay 5 Australia 40 X 40 By Izabela Latos

Painting Torquay 5 Australia 40 X 40 By Izabela Latos

Teenage Mutant Ninja Turtle Sketch Drawing Turtle Sketch Ninja Turtle Drawing Ninja Turtles

Teenage Mutant Ninja Turtle Sketch Drawing Turtle Sketch Ninja Turtle Drawing Ninja Turtles

Kate Wyatt Artist Kate Wyatt Art Animal Art Art Rabbit Art

Kate Wyatt Artist Kate Wyatt Art Animal Art Art Rabbit Art

Unique Original Drawing When It S Gone It S Gone Original Pencil Drawing Part Of My Studio Clearance Of My Ypres Studio Original Drawing Ww1 Art Drawings

Unique Original Drawing When It S Gone It S Gone Original Pencil Drawing Part Of My Studio Clearance Of My Ypres Studio Original Drawing Ww1 Art Drawings

Blue Tarn Hare Hase Zeichnen Tiere Zeichnen Katze Zeichnen

Blue Tarn Hare Hase Zeichnen Tiere Zeichnen Katze Zeichnen

Torquay House By Wolveridge Architects Torquay House Torquay Architect

Torquay House By Wolveridge Architects Torquay House Torquay Architect

A Look At The Past Belgrave Road Torquay Torquay Past The Past

A Look At The Past Belgrave Road Torquay Torquay Past The Past

Artstation Mondead Studio Project 01 Bumskee Mondead Studio Concept Art Characters Figure Drawing Character Design

Artstation Mondead Studio Project 01 Bumskee Mondead Studio Concept Art Characters Figure Drawing Character Design

Signed Limited Edition Prints Mounted Framed River Scenes Seascapes Devon Dartmoor River Dart By Richard Tho Watercolor Landscape River Painting Water Painting

Signed Limited Edition Prints Mounted Framed River Scenes Seascapes Devon Dartmoor River Dart By Richard Tho Watercolor Landscape River Painting Water Painting

Pencil Drawing Hands Ideas Pencil Portrait Drawing Prints Drawings

Pencil Drawing Hands Ideas Pencil Portrait Drawing Prints Drawings